11 Edizione Polenta e Bruscitt
Busto Arsizio 22 novembre 2025

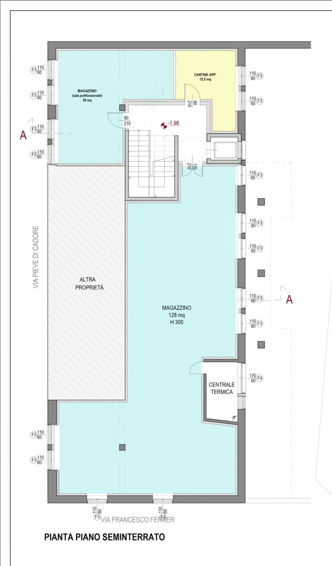
Progetto di completamento della "Casa Gialla"
La Casa Gialla, casa di accoglienza per minori, ha iniziato l'attività nel 2014. Nel 2017 la Cooperativa Primi Passi ha acquisito la parte rimanente dell'edificio per il completamento della struttura, ma la mancanza di risorse ha determinato il rinvio dei lavori di ristrutturazione.
Il progetto è stato riconsiderato all'inizio del 2025 e nel corso del mese di ottobre è stato finalmente approvato dal Comune di Busto Arsizio, che ha rilasciato il permesso per l'inizio dei lavori.
E' un intervento che richiederà un ulteriore impegno economico da parte della Cooperativa Primi Passi, ma finalmente dopo 11 anni la struttura potrà essere completata. Saranno realizzati spazi per una famiglia residente, di supporto alla casa di accoglienza; un piccolo appartamento destinato ai genitori che decidono di adottare un bambino della Casa Gialla, che hanno necessità di uno spazio autonomo durante il periodo di conoscenza e convivenza con il bambino, prima dell'inizio effettivo dell'adozione. Sarà realizzato anche un ufficio per le relazioni con gli assistenti sociali dei comuni di residenza dei bambini ospitati o con altri professionisti coinvolti. Da ultimo, oltre alla realizzazione di locali comuni aperti anche al territorio e a realtà che desiderano conoscere la struttura di accoglienza, saranno ridisegnati anche gli spazi esterni, per renderli più rispondenti alle esigenze dei bambini presenti.




Elenco premi lotteria
Estrazione dei premi il 22 novembre alle 20,45 durante il video-collegamento ZOOM
1° Premio - Notebook HP 128 GB Display14"
2° Premio - Tablet Samsung Galaxi Tab A9+ WIFI 128 GB Display11"
3° Premio - Speaker Wireless JBL Clip 5
4° Premio - Vaporiera Clatronic
5° Premio - Maglione cashemere
6° Premio - Maglione cashemere
7° Premio - Bottiglia di Champagne POMMERY
8° Premio - Portafrutta/pane Alessi
9° Premio - Pirofila in coccio
10° Premio - Tovaglia in pizzo
11° Premio - Libro di cucina
12° Premio - 2 buoni da 10 euro da consumare al Bar Rafiki via Dante 1/B Busto arsizio
Le ultime notizie della Cooperativa

ll 29 gennaio la Gioebia è stata bruciata in collaborazione con i commercianti di Sacconago e i nonni. Tutti invitati al nido per una colazione.
29/01/2026

Natale in Casa Gialla
24/12/2025

2 ottobre festa dell’angelo custode, i bambini hanno realizzato con l’aiuto delle educatrici un piccolo angelo con materiale di recupero
07/11/2025